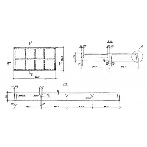
1П 1

Чертеж изделия:
Характеристики изделия:
ПараметрЗначение
длина5550 мм
ширина2985 мм
высота400 мм
масса3800 кг
нормативный документГОСТ 27215-87

1П 1  Плиты с опорными элементами для полок ригелей ГОСТ 27215-87.