БП 24

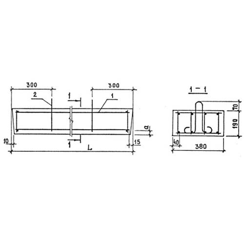
Чертеж изделия:
Характеристики изделия:
ПараметрЗначение
длина2450 мм
ширина380 мм
высота190 мм
вес440 кг
серия1.139-1

БП 24 Плитные перемычки по серии 1.139-1.