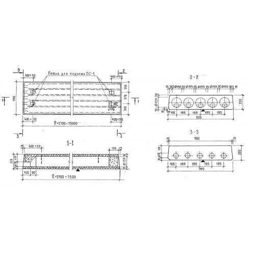
БПК 40.10

Чертеж изделия:
Характеристики изделия:
ПараметрЗначение
длина4000 мм
ширина990 мм
высота220 мм
вес1218 кг
серия1.141.1 КР-3

БПК 40.10 Панели с круглыми пустотами без выпускных ребер по серии 1.141.1 КР-3.