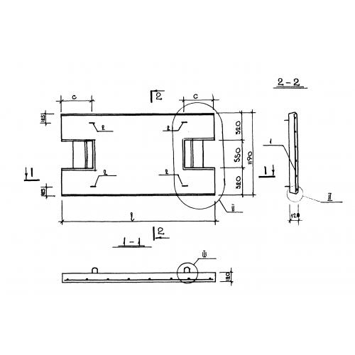
П 18.12.12

Чертеж изделия:
Характеристики изделия:
ПараметрЗначение
длина1790 мм
ширина1190 мм
высота120 мм
вес500 кг
серия1.243.1 КЛ-3

П 18.12.12 Панели перекрытий сплошные по серии 1.243.1 КЛ-3.