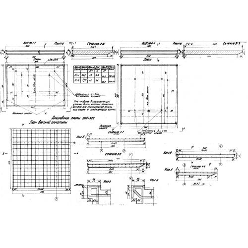
ПС 1 плиты стеновые

Чертеж изделия:
Характеристики изделия:
ПараметрЗначение
длина2980 мм
ширина870 мм
высота80 мм
масса530 кг
нормативный документСерия ИС 01-04

ПС 1 Плиты стеновые по Серии ИС 01-04.